Tư vấn xây dựng Bốn Phương
Tư vấn xây dựng Bốn Phương hoạt động trong lĩnh vực Xây dựng và thiết kế
Mục “Thí nghiệm, thử tải kết cấu công trình”
Nội dung: Khảo sát, kiểm định, thử tải kết cấu dầm sàn toàn khối
Dự án: Trường THPT Chuyên Vĩnh Phúc
Nội dung thực hiện:
Kết quả thử tải ô sàn
KẾT QUẢ THỬ TẢI Ô SÀN
Khu vực thí nghiệm

Vị trí thí nghiệm thử tải dầm sàn toàn khối cốt 0.000 (trục (X16-X19)x(Y2-Y4))
Tải trọng thí nghiệm
Tại thời điểm thí nghiệm, kết cấu dầm, sàn đã thi công xong lớp hoàn thiện mặt sàn nhưng chưa chịu hoạt tải sử dụng.
Theo hồ sơ thiết kế, các tải trọng tác dụng lên khu vực sàn được thí nghiệm bao gồm:
Vì vậy, tải trọng thí nghiệm bao gồm các tải trọng như sau:
Ptn = ((DL+SDL)*0.1+LL)*0.9
Quy trình chất tải thí nghiệm
Trọng lượng bản thân của kết cấu thí nghiệm được quy ước là cấp tải 0. Tải trọng thí nghiệm được chất theo từng cấp tải, mỗi cấp tải có giá trị tương đương 25% tổng tải trọng thí nghiệm.
Sau mỗi cấp tải tiến hành thu thập số liệu thí nghiệm ngay sau khi chất tải xong và sau khi chất tải xong 5 phút. Nếu sau 5 phút kết cấu chưa có biểu hiện ổn định thì cần tiếp tục theo dõi và đọc số liệu thí nghiệm tại các thời điểm cách nhau 5 phút cho đến khi kết cấu ổn định hoặc dừng thí nghiệm và hạ tải nếu có dấu hiệu kết cấu có nguy cơ bị phá huỷ.
Sau mỗi cấp tải tiến hành kiểm tra kỹ lưỡng kết cấu thử để phát hiện những hiện tượng bất thường như vết nứt lớn hơn quy định của thiết kế hay tiêu chuẩn áp dụng, vết nứt do cắt, vết nứt do nén (nén vỡ), độ võng lớn, v.v.
Sau khi đã chất tải toàn bộ, dự kiến thời gian giữ tải trong 24 giờ. Trong quá trình giữ tải tiến hành quan trắc kết cấu, theo dõi, đo độ võng, nứt.
Trong thời gian giữ tải cần theo dõi kết cấu định kỳ đề phòng các trường hợp phá huỷ có thể xảy ra, ghi số liệu thí nghiệm định kỳ nhưng thời gian giữa các lần ghi không vượt quá 2 giờ.
Sau khi kết thúc thời gian giữ tải thì tiến hành dỡ tải thí nghiệm thành từng cấp, tiến hành ghi số liệu thí nghiệm theo trình tự như khi chất tải.
Sau khi tải trọng thí nghiệm đã được dỡ bỏ về cấp ban đầu (cấp 0%), tiến hành ghi số liệu thí nghiệm để xác định độ võng dư trong thời gian dự kiến là 24 giờ. Sau 24 giờ dỡ tải, nếu số liệu chuyển vị không thay đổi có thể dừng thí nghiệm. Nếu kết cấu thí nghiệm tại cấp tải 100% thỏa mãn điều kiện trong công thức (1), mục 4.5 thì có thể bỏ qua bước xác định độ võng dư sau 24h kể từ thời điểm hạ tải.
Thiết bị đo
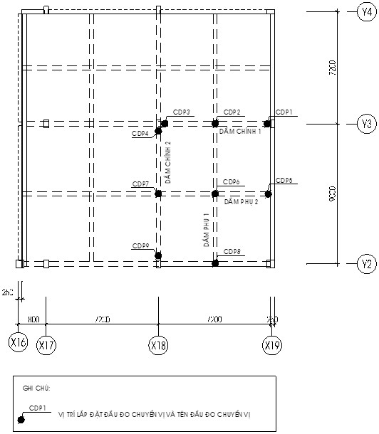
Bố trí đầu đo chuyển vị: Tổng cộng có 09 đầu đo chuyển vị điện tử được sử dụng. Sơ đồ bố trí đầu đo chuyển vị được cho trong Hình dưới. Các đầu đo chuyển vị được kết nối với máy đo ghi số liệu nhiều kênh TDS – 530.

Sơ đồ bố trí đồng hồ đo chuyển vị
Kết quả thí nghiệm thử tải
+ Đánh giá về độ võng
+ Đánh giá bề rộng vết nứt
+ Kết luận kết quả thử tải
Tư vấn xây dựng Bốn Phương hoạt động trong lĩnh vực Xây dựng và thiết kế
ĐỊA CHỈ Trần Cung, Nghĩa Đô, Hà Nội
HOTTLINE0977 881 789
EMAILdoduybon@gmail.com